首发丨 WJID 维几 / 光 , 看 得 见 的 乌 托 邦【环球设计2365期】
作者: 来源: 热度:1609 时间:2020-09-11
Future City.
在 此 刻 中 抵 达 未 来
2020年
Future City.
在 此 刻 中 抵 达 未 来

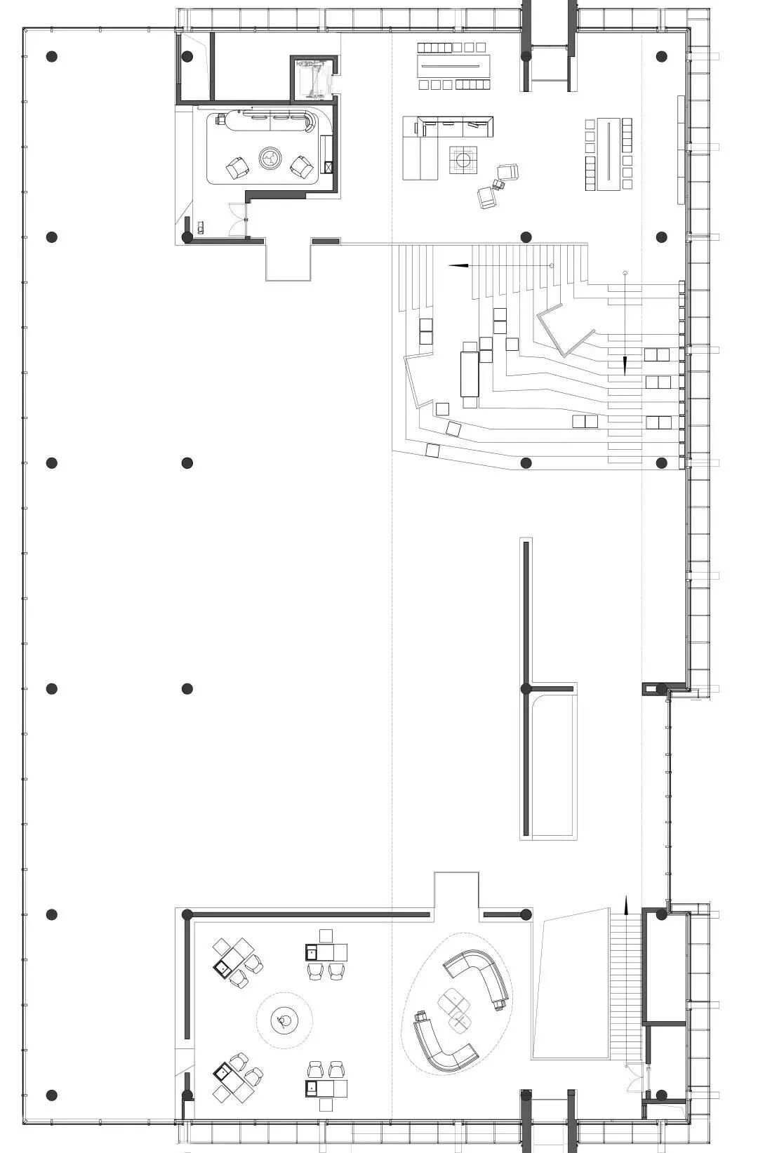
2020年威尼斯建筑双年展提出“How will we live together?”的命题,其中的“live”,并不仅仅指居住和生存,也是精神富足的生活。人类从未停止对于未来生活可能性的探索。如同华侨城在深圳的分量,在城市升级蓄势待发的合肥,同样需要一台引擎、一个范本、一个盛满可能性的地方。△Photo Credit:Blackstation当华侨城与空港国际小镇相遇,力图透过空间的想象力,在合肥打造理想城市生活的标杆,书写未来社区生活场景,在此刻中抵达未来。城市并非一个百世不易的模型,而是一个变动的场域、一种流动的状态。WJID从“未来寓所”出发,打造高度概念化的空间,试图捕捉未来社区与人居关系的缩影。没有严格定义的结构元素,相反,设计师让保持了一种更为开放、纯净和通透的可能性。立面的简洁表达蕴含了这一理念,墙体舒缓的曲线塑造了雕塑般的空间体验,形体在简洁的铺陈中触摸到永恒的高度。
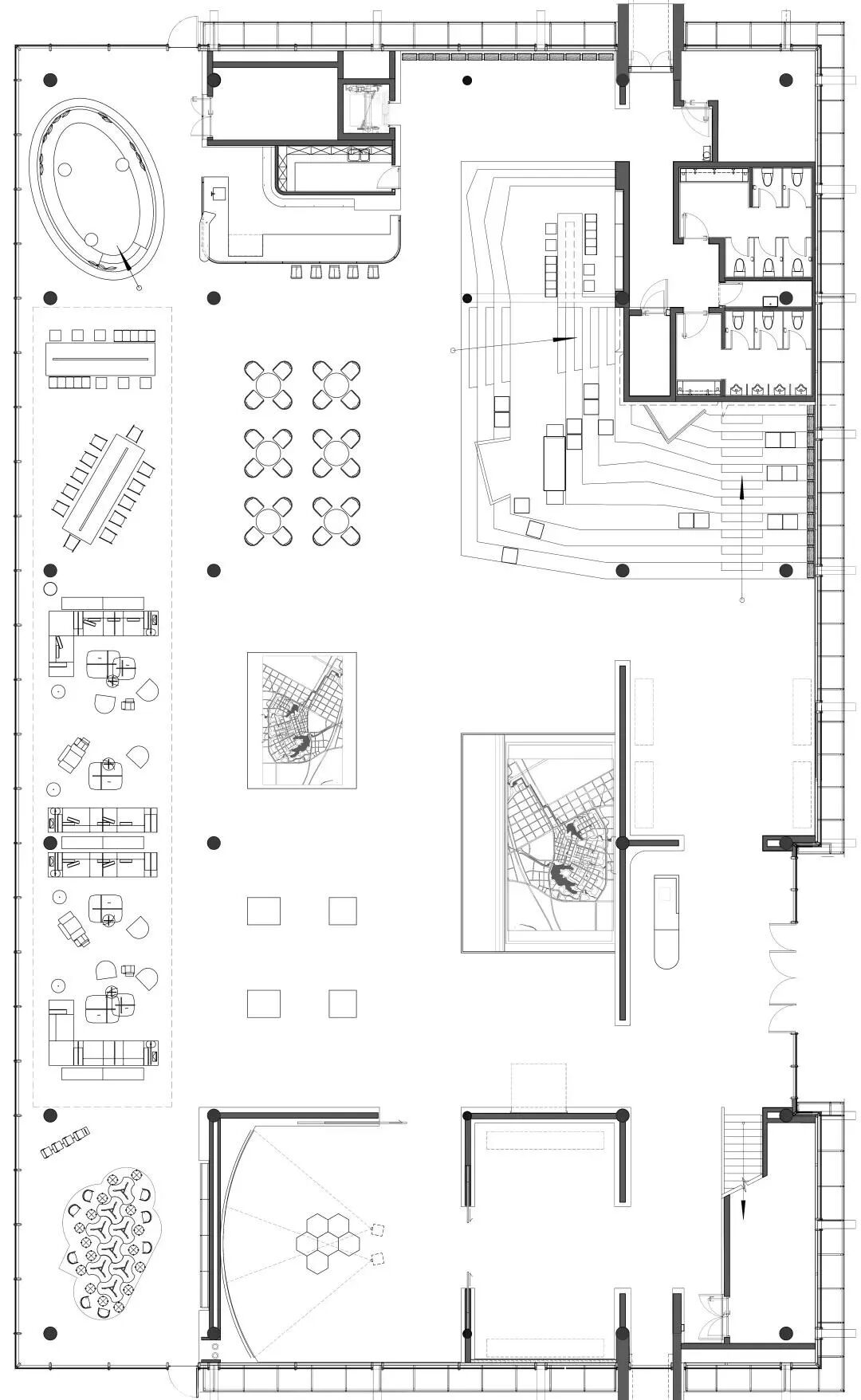
建筑主体是一本翻开的书,朝天卷起的曲线屋顶形似书脊,与墙体之间有一个空隙,这使得天光得以进入。自然光的照射从视觉感受上极大地降低了金属材质的厚实量感,显得轻盈、温和。长窗以及粗糙的墙面,可以将自然光分解柔化成漫射光洒落。光线在一日之间,一年四季中的改变,赐色彩于我们。用太阳的步伐来调节室内的氛围,让人舒适地体会到自然的节奏,增强人和自然的联系。设计师利用光线,对空间秩序进行调整,营造整体氛围。空间的虚实、交错、渗透,在光线的流转间产生微妙而细腻的变化。当光线进入空间,某种被净化了的、空灵的气氛便会产生,毫无修饰的白墙上更添了几分纯粹。光的明暗变化赋予了材质深度与立体感,也增加了色彩的深度与变化。强光,点光源,反射光和投影,同一材质与不同光源配合,颜色的对撞如艺术拼贴一般饶有趣味。简洁的形体,使空间的色块关系更为突出。深色的横梁与暖色的弧形天花形成了色彩的对撞,创造出了一个宁静而厚重的室内空间。美国耶鲁大学哲学系教授卡斯腾·哈里斯(Karsten Harries)在《建筑的伦理功能》中说,建筑有一种伦理功能,它把我们从日常中召唤出来,去向往一个更好的、更接近理想的生活。建筑的伦理功能也是一种公共功能,个体通过建筑在彼此间产生联系。展厅与夹层之间的景观阶梯便是一个体现这种功能的重要空间节点。阶梯可供上下行,同时也供参观者落座,展览、社交、路演、休憩等丰富的功能性都可以从此处延伸开来。WJID运用“内建筑”的理念,通过结构、体块的划分与设计,在室内设计中创造“建筑感”,让整个空间与建筑协调一致、共同生长。阳台犹如一个建筑模块,嵌入到这个空间单元,室内空间仅通过体块的凹凸错落便完成了层次表达。沙盘做成起伏的模样,曲线柔和了整个空间的线条。将未来社区的概念从抽象的文字注解,转变为可被理解、可供观赏的艺术图景,想象和描摹着未来城市的演化历程。从中依稀可见1950年,勒·柯布西耶设计的朗香教堂的风姿。勒·柯布西耶去除华丽宗教装饰,洗刷宗教的堕落之名。在对于现代建筑的自由、简洁、宽厚的追求上,二者不谋而合。“这是一个幸福的生活方式集合馆,欢迎来到空港国际小镇,加入有温度的艺术生活圈。”进入展厅,空间变得轻盈与开阔,以亲和的姿态向观者敞开,形成了一个客厅式的空间场所记忆。这里是社区的“客厅”,人们可以在这里找到精神上的落脚点。落地窗最大化地引入自然光,打通室内外,让空间更具纵深感和通透性。软装配色与下沉式洽谈区的结构呼应前厅,承袭简洁的质感。创展中心引入幸福集荟书店,使这里成为一个大开大合的多功能空间,拥有读书、文创、咖啡、洽谈等功能。人们可以将开放性的思考注入空间,激发对未来的想象。多维度的美学体验聚集在一个空间里,使得人们很难去定义这个空间——书店、咖啡厅、美术馆、会展空间……也许,难以界定正是幸福集荟的魅力所在,它将这些与城市理想生活有关的图景与片段都融合进来。美国社会学家雷·奥登伯格(Ray Oldenburg)最早提出了城市“第三空间”的概念,认为“第三空间”是人们能够进行公共交流、没有角色束缚的城市公共空间。幸福集荟使这里得以成为社区的联系纽带与个体间的对话媒介。人们聚集在这个“第三空间”中,成为产生社区情感认同的基础。WJID为空间植入这种“共享社交的基因”,希望将此处打造为一个充满能量、灵感和融合的地方,一个极具活力的合作空间。在未来社区中,一种全新的邻里在地文化衍生出来。开放、包容、多元的交流在这里进行,共同塑造独特多元的城市肌理,呈现城市的过去、现在与未来。WJID维几设计,一家前沿的室内设计公司,致力于顶级商业地产、酒店及度假村、高端会所、超高层办公楼等高级定制化的设计及软装服务,视每个项目都是一次打造独特创新设计的机会。团队成立以来,由近180余位设计师组成,从概念的创建、项目开发以及监督等都具备专业的知识,系统化的运营模式和大型项目的管理能力,打造了一支极具行业竞争力的设计团队。


近期热文
▽

师从 扎哈、库哈斯,他设计的森林奇境树屋酒店如超酷太空舱!

首发丨水相设计 李智翔 / 台中426m 大平层,静候的品味

一座孤独的乡村民宿,400公顷田园丛林,这里的心灵治愈很高级!

绪方慎一郎 | 将美食、文化、手工艺、设计 大融合的东方美学大师
独家首发,未经授权,严禁转载,欢迎转发至朋友圈。

更多精彩请关注
▽
