金阳新世界嘉苑 | 心若归处就是家
作者: 来源: 热度:1858 时间:2020-09-12
大 宅 艺 术 定 制 / 空 间 优 化 专 家
项目地址:金阳新
大 宅 艺 术 定 制 / 空 间 优 化 专 家

项目地址:金阳新世界嘉苑
Project address:Jinyang NewWorld Jiayuan
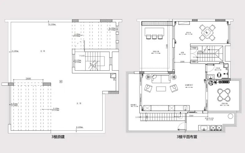
Unit structure:Duplex houseDesign style:Modern northern Europe设 计 星 语 / Design specification空间优化/Spatial optimization本案例是位于金阳新世界嘉苑的顶楼复式楼,建筑共有三层结构,建筑面积达到297㎡,整体建筑风格国际现代化风格,很有设计感。
业主家里有老人和孩子,喜欢轻松的环境氛围,整体设计风格偏向于现代北欧风。一层是餐厨区域,包括老人房和客房,楼层较低,方便老人活动出行。二层是业主和女儿的套房,距离近,方便照顾女儿。设置起居学习区,和女儿沟通交流更方便更亲密。三层整体是休闲娱乐空间。影视厅休闲室大小花园,满足业主爱好和女儿对大自然的好奇,温馨浪漫。拆除原有客厅背景墙,引进光线,利用转弯打造入户玄关;开放式餐厅和小吧台,让光线更自由;外围空间纳进主卧,增加衣帽间,布置起居学习区,更方便和女儿沟通交流;功能划分详细,外有观景露台内有大小花园,家庭影视厅的设计更适合休闲娱乐 。客厅装修一直以来都是整个家居装修中一个重要环节,可以说客厅装修的好坏关系到整个家装质量的高低。客厅整体并没有太多繁杂装饰,以线条色块来区分点缀。蓝色灰色白色相互映衬,给人一种干净明快的节奏。

浮世万千值得留恋,一日三餐亦是头等大事。每一次的油烟升腾,好像心也在一起沸腾,当烟消散无形,美好的事情,都尘埃落定。推拉玻璃门的设计,改善屋内光线,视野开阔。造型独特的吊灯,是焦点所在,繁简相宜,质感升华。小吧台的设计,挡住后方裸露的台阶,这是一种“含蓄美”。闲暇时坐在高脚凳上,品美酒滋味,思生活远方。
搭建外围空间后,主卧多出衣帽间的位置,便于存放生活用品。石膏叠级处理,精致细腻。超大落地窗,让阳光洒满卧室每个角落。原木色的搭配,为房间披上一层温馨素雅的自然气息。距离主卧不远,是女儿的小天地,套间设计,相对独立,私密性较好。粉色,是大多数女孩难以抗拒的色彩。粉色打底,白色点缀,渲染出一个童话世界。线条简单的灰色地毯,回形灯上的精致小鸟,还有墙角的吊椅,勾勒出这世间的温柔美好 。看过繁华也见过平凡,发现最向往的还是宁静自然。世间万物,唯有合适最得人心。对于老人而言,行动方便放在首位。一楼的房间,预防上下安全问题。深木色地板搭配素色背景,简单直接的打造宁静氛围 。桌上的绿植,清新自然,让人心情舒畅。家,不仅仅是吃饭睡觉的地方,也是我们休闲爱好的场所,多姿多彩,充实生活。沙发吊灯展示柜,简简单单贴近生活。几何图案的地毯,严谨中透露一丝童趣。蓝色麋鹿挂画,激发孩子的灵感。去除棱角,避免磕磕碰碰,圆滑才能尽情玩耍。休息时,和家人一起唱歌看电影做游戏,尽享欢乐时光。麻将,中国国粹之一。约上三五好友,来上几局,在这一方天地中,共享月色慷慨,夜色微凉,欢声笑语却暖人心。日月的轨迹轮转着自由组合
把所有的欢声笑语写成歌
我们向往的生活
不正是这样的生活吗
就让思绪短暂放松
去大自然里邂逅奇遇
我 / 就 / 是 / 设计师 / 姚亚麟
I AM A DESIGNER
