APP Store 排名第一的家居杂志
家,是每个人最私密的空间:有人在家只为睡个安稳觉,也有人在家一心只想葛优躺。在本月精选的10个私宅设计中,你能看见玩转色彩的案例,也能看见空间的乾坤大挪移。有在空间中将主人个性与爱好的完美诠释,也能看到新一代生活方式的变迁。
有人说,每次看见一个优秀的项目设计,都像是打开了一次盲盒,因为在此之前,你永远不知道,里面暗藏了多少惊喜。
跌入打破想象的缤纷调色盘
多种颜色的混搭相比简约统一的黑灰色调,难度像是升了级。若是要在这中间找到平衡点更是难上加难。设计师了解到屋主是位时尚博主,日常也经常与各大时尚品牌有所接触,突破常规打造了这所能让屋主兼顾工作与日常生活的房子。在这百十方的屋内,你能看到古典的拱券,也能找到莫比乌斯之环。像是走进了一个拍摄空间,也像是跌入了一块缤纷的调色盘。
推荐理由(点击首图可进入具体案例):戏剧感与静谧感也可以共处一室
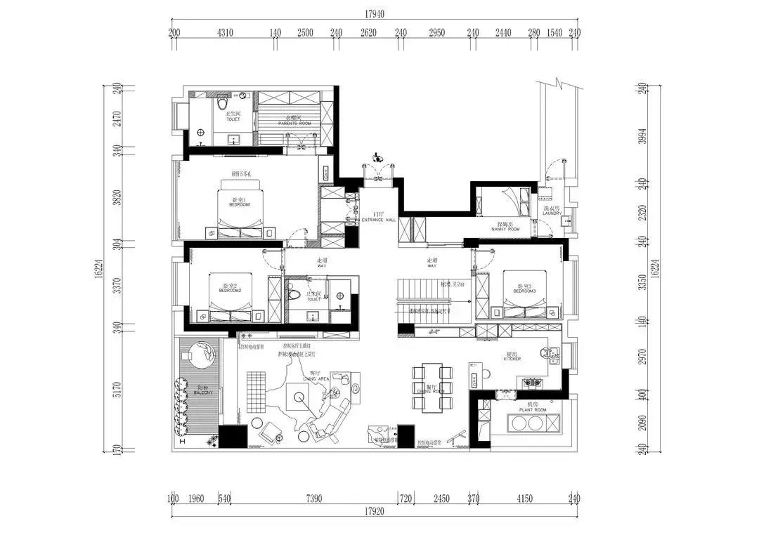
户型图
扫码了解更多设计师案例
尺度变化间感受慢生活
450平方的顶层复式,6米的挑高,270度的环景视野,几个数字就说明了这套豪宅的与众不同。设计师深谙作为商务人士的屋主之喜好,烟熏橡木,玻璃扶手,每到一处无不是简洁又干练,低调又讲究。
推荐理由(点击首图可进入具体案例):是住所,更是屋主气质的完美呈现。奢华不是浮华,在黑灰空间里感受不一样的品味。
晓安设计:270°环景顶层复式豪宅,坐拥无敌简奢生活!
扫码了解更多设计师案例
真正适合自己的才叫“精装”
随着市场发展,越来越多的住宅交付时都是精装。这种看似方便的行为,事实上却不一定符合自己的需求。这个案例的屋主就将原本的装修全部推倒重来,虽然步骤繁琐花费不少,但想到如果要在自己不喜欢的空间里住上十年二十年甚至更久,是否又会觉得值得了呢?客厅没有沙发而是选用了坐塌,没有主灯而是将轨道射灯嵌入了吊顶,看似不大的改动,就给住所带来了完全不一样的灵动鲜活。
推荐理由(点击首图可进入具体案例):色调优雅耐看,还能聚会轰趴
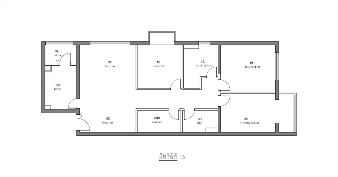
原始结构图
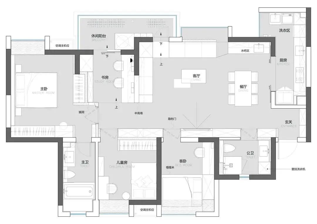
平面方案
桐里空间设计 周彦遐(夏夏):长椅代替主沙发,拥有超宽敞又适合聚会的餐客空间
扫码了解更多设计师案例
谁说家里不能用全黑?
在70平方的面积内使用全黑的色调,不得不为大胆;如果再加上这70平方还是不规则的空间,你就不得不佩服设计师的功力了。减少客厅里复杂的陈设,改用光滑有棱角的软装,再配上潮流的Kwas的门神,克莱因蓝的椅子作为黑色空间里的点缀,一时间恍若步入了W hotel。沉闷不再,只有高级。
推荐理由(点击首图可进入具体案例):家居住宅大胆又神秘的黑色典范
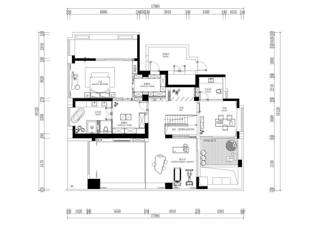
平面方案图
费崎峰 FF空间设计:70㎡公寓也要有悬挂式壁炉,慵懒随性的态度生活
扫码了解更多设计师案例
9猫2狗的两人自由生活
随着猫奴的增多,现代室内设计的动线不仅要满足人的日常所需,还要满足小动物们的日常所需。这个案例来自一对家有11条宠物的小两口。设计师设计了单向猫门,小动物跑道,加厚主卧床头墙体,还有书桌内嵌插座的处理。保护小动物们就是保护了家。
推荐理由(点击首图可进入具体案例):适合每一位家有爱宠的人士借鉴
平面图
李佳 季意设计:132㎡现代简约风,一屋二人九只猫,她家是个宠物星球
扫码了解更多设计师案例
28平方空间的极致利用
分享过的顶奢豪宅设计不少,但这个一共只有28平方米的设计却不禁让人连连赞叹。它的总面积可能还敌不上很多人家的一个主卧,但设计师却用心地将每寸空间的利用率发挥到极致,将4个人在其中的生活都安排得妥妥当当。
推荐理由(点击首图可进入具体案例):超小户型却超级精致
平面图
涵瑜设计:40年历史老房改造,28平怎么容纳四口人的生活?
扫码了解更多设计师案例
淡淡果绿色,悠悠南洋风
看到淡淡的果绿色,内心便好像瞬间降了温。犹如南洋的风一阵拂过,此刻,只剩下想吃夏天冰西瓜的心情。黄铜色的金属与宝蓝色的丝绒沙发细语,藤编的椅子与木质家具低声呢喃。一草一叶之间,都是主人对向往生活的描绘。
推荐理由(点击首图可进入具体案例):清新治愈的小美好
前后平面图对比
见微设计 向北 :清新质朴又不失精致,打造烟火气的89㎡复古南洋家
扫码了解更多设计师案例
理想空间,合邻而居
与父母住的近,但又不是住在同一个屋檐下,平时能够彼此照料且又有各自的私密空间,应该是新一代年轻人的理想居住模式了。这个案例就来自这样一户年轻家庭,刚过百的面积满足一家三口日常需求,木色与蓝灰色调搭配展现出一种现代气质。最妙的是书房与客厅的隔断用一面玻璃来代替原本厚实的墙体,既通透明亮还增强了两个空间的彼此链接。
推荐理由(点击首图可进入具体案例):适应当代年轻家庭的居住样板房,风格简约,功能全面。
前后户型图对比
拾光悠然设计:同在一小区合邻而居,当代年轻人与父母的居住新模式
扫码了解更多设计师案例
四房变三房,这婚房太敢装
140平方的新婚居住空间,敢于打破常规去除不需要的浮华装饰,也敢于大刀阔斧根据自己的生活轨迹,将四房改成整体更加开阔明亮的三房。将暂时并不需要的次卧与客厅打通,设计成开放式的书房,平时一人可以在沙发上看书,一人则可以在另一侧撸猫。也许并不需要多说什么,但两个人在一起的空间,就足够幸福。
推荐理由(点击首图可进入具体案例):用爱意构筑的家,充满了个性的符号而不是谁的复制品。沙发、餐桌、阳台,每一处,都应满足自身对美好生活的想象。
前后户型图对比
合肥飞墨设计 李秀玲:移除电视墙、打通大阳台、开放式书房...这个140㎡简约婚房太敢装!
扫码了解更多设计师案例
设计让跨越世纪的家宅重生
要不是看到老宅原本的样子,几乎没人敢相信眼前的设计竟是发生在一幢上个世纪的别墅里。红黄蓝紫交错的颜色,横竖曲直勾勒的空间,就好像将纪念碑谷平移进了现实生活。构筑童话世界的同时也不忘空间功能的实用性,恰到好处的光线阴影,私密空间的花砖图案,每一处都充满了设计师与屋主的小巧思。
推荐理由(点击首图可进入具体案例):游戏照进现实,只要敢想,就能实现。
户型图
理居设计:穿越山谷之旅,藏身于上个世纪老别墅里的几何概念趣味宅
扫码了解更多设计师案例
PChouse家居杂志
版权所有 · 盗版必究
欢迎转载 · 注明出处
>>重磅发布 | 2020 PChouse Award私宅设计大奖城市榜<<
>>赛事精选 | 不止“大”和“豪”,别墅的美更多体现在这里<<
>>被PChouse Award评委们选中的作品,都具有哪些特质?<<
>>对于未来的居住空间,PChouse Award的评委们这样说<<
>>PChouse Award参赛设计师专访 | 值得思考的未来设计<<





















